Bilocale in vendita

Roma, Via Augusto Conti - Montemario
€ 185.000
Prezzo aggiornato
62 Mq 62 Mq
1 bagno 1 bagno

Bilocale in vendita

Roma, Via Augusto Conti - Montemario

Descrizione annuncio

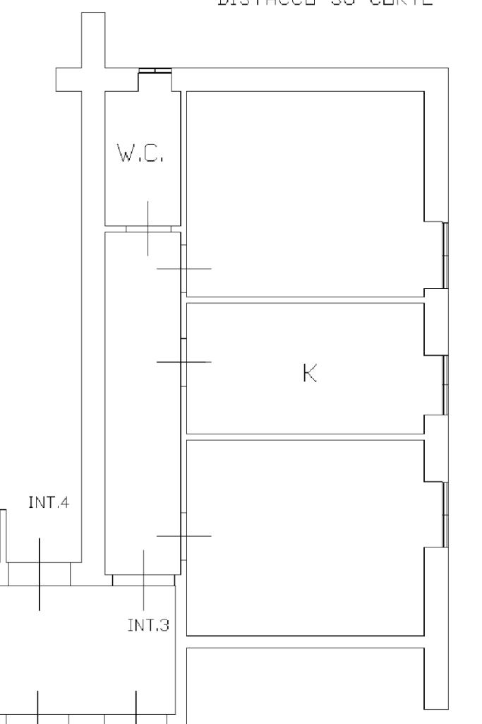
MONTEMARIO - A. CONTI: proponiamo in vendita immobile posto al piano rialzato di uno stabile in tinta.

L'appartamento è composto da un ingresso, soggiorno, cucina semiabitabile, camera matrimoniale, disimpegno e bagno.

Lìimmobile è stato completamente ristrutturato e presenta porta blindata, pavimenti in gres porcellanato, impianti e rivestimenti nuovi ed infissi in pvc con doppio vetro.

E' dotato di tutte le certificazioni degli impianti ed il riscaldamento è centralizzato con contailizzatori di calore.

Libero e disponibile fin da subito.

Mostra tutto

Nelle vicinanze

Trasporto pubblico Trasporto pubblico
Roma San Filippo Neri
Roma San Filippo Neri
670 m
stazione di Roma Monte Mario
stazione di Roma Monte Mario
680 m
Conti A./Dati
Conti A./Dati
80 m
Cherubini F.
Cherubini F.
90 m
Scuole Scuole
Scuola elementare
400 m
Don Orione
450 m
Istituto Tecnico Industriale Enrico Fermi
520 m
Scuola S. Antonio
600 m
Scuola Giuseppe Taverna
660 m
Farmacia Farmacia
Silvestrini
160 m
Nocerino
160 m
Farmacia Padre Pio
480 m
Farmacia
860 m
doc*Cortina
1,1 Km
Ospedali Ospedali
Presidio Ospedaliero San Filippo Neri
910 m
Hospice Villa Speranza
1,5 Km
Policlinico Universitario Agostino Gemelli
1,6 Km
Ospedali
1,9 Km
Complesso Integrato Columbus
2,1 Km
Supermercati Supermercati
Metà
210 m
tigre amico
270 m
Supermercati
520 m
Tuodì
580 m
Carrefour
620 m
Negozi Negozi
Tigre
90 m
Negozi
100 m
drogheria Alesse
320 m
Panificio Kumera
330 m
Maria Moda
400 m
Bar Bar
Bar Thouar
320 m
Bar
350 m
l'amico
420 m
Mondi
960 m
Truzzi
1,0 Km
Ristoranti Ristoranti
Losteria carolina
330 m
Sole
710 m
La Molisanella
720 m
cinapoli
820 m
Ristoranti
870 m
Mostra tutto

Caratteristiche

Rif.:
61142875
Piano:
1 di 4 (Piano basso)
Camere da letto:
1
Arredamento:
Assente
Condizionamento:
Assente
Ascensore:
No
Mostra tutto
Prezzo Prezzo
€ 185.000
Rata mutuo Rata mutuo
€ 872 / mese
Spese annue Spese annue
€ 600
Proponi il tuo prezzoProponi il tuo prezzo

Classe Energetica

G
G
G
G
G
G
G
G
G
EP globale non rinnovabile:
175.00 kW h/m² anno
Anno di costruzione:
1956
Riscaldamento:
Centralizzato
Tipo impianto:
A radiatori
Tipo alimentazione:
Metano

Prezzo ridotto di €1 (8%%)

Ti interessa visionare l'immobile?

Fissa un appuntamento  Fissa un appuntamento

Richiedi informazioni

Clicca su Leggi per aprire l'informativa
* Questi campi sono obbligatori

Calcola il tuo mutuo

Semplice e senza impegno
Anticipo

( % )
Mutuo

( % )

pochi semplici passi

inserisci i tuoi dati
Questionario completato
Grazie per aver richiesto un appuntamento senza impegno con un nostro Consulente del Credito e Assicurativo.

Hai inserito correttamente tutti i dati necessari e a breve riceverai una e-mail con un link da convalidare per inviare i tuoi dati.
Affiliato
Montemario Immobiliare Srl
Via Vincenzo Troya, 32/A 00135 Roma (RM)

Il nostro staff


  • Vincenza Marchione
    Affiliata

  • Sara D'Ambrogi
    Coordinatrice
Via Vincenzo Troya, 32/A 00135 Roma (RM)
Zona: Monte Mario - Guadalupe
Mostra su mappa
Orari: dal lun. al ven.dalle 09:00 alle 13:00dalle 15:30 alle 20:00 sab. dalle 9:00 alle 18:00 - Domenica su appuntamento
Affiliato
Montemario Immobiliare Srl
Via Vincenzo Troya, 32/A 00135 Roma (RM)

2026 Tecnocasa Franchising S.p.A. - P. IVA 08365160152 - Via Monte Bianco 60/A 20089 Rozzano (MI). Ogni agenzia ha un proprio titolare ed è autonoma. Privacy policy | Policy utilizzo | Cookie policy